Buckinghamshire Railway Centre Logo

BRC Website Home
Quainton Virtual Stockbook
Quainton News Archive - Quainton News No. 71 - September 1992

The Development of our Railway Centre - Roy Miller


A New Entrance to Our Up Yard and Relocation of Mr Evans the Coal Merchant

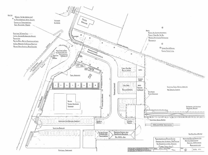
The drawing QRS 411, reproduced on the centre pages[below], is the plan recently approved by our Local Planning Authority for the development of our Up Yard. Although we like to think all our planning is sympathetic to our area, the development of what we know as Mrs Harris's field is a change of use from Agricultural Purposes. A change has only been achieved by a great deal of negotiation and consultation with the Local Authority.

Our first priority is the relocation of Mr Evans the coal merchant; his family has been trading from our station for four generations now and is has not been our wish to see him go out of business. However, the coal stocks in the middle of our Up Yard are now an embarrassment to us. In the winter there is the coaley mud and in the summer the dust. Mr Evans wants to spend money to improve things, but naturally cannot do so knowing we wish him to move.

The new yard will be adjacent to the Telephone Exchange with its own entrance coming off what is now the "D" into the existing entrance. Mr Evans will be responsible for the cost of this new yard and in return we will grant him a lease of a length of time equal to an economical rent. Stringent planning conditions have been applied and the yard must be surrounded by a two metre high concrete wall with trees and shrubs on an embankment to reduce the visual impact. The bagging plant must be surrounded by an enclosure which we will design for him, to reduce the noise and dust.

It will obviously take some time to construct this new yard and to transfer the coal stocks, but once this has been achieved we will be able to clear the existing area. We already have Outline Planning Permission to extend our Up Yard Building when funds become available. We can now also make plans for the installation of our turntable.

We need a new entrance to our Up Yard to assist access for the large road vehicles moving our locomotives and carriages. We also need an entrance that will be independent of British Telecom and British Rail, for security and so that we can make a more attractive entrance that will appeal to our visitors.

We will always use our Car Parking Field to park cars during the summer months; this keeps them away from the Village of Quainton and is much more pleasant for our visitors, but we do have a problem for our Santa Steamings and if Easter is early when the field is too soft for vehicles. To assist with this we plan a car parking area adjacent to our new roadway which will also provide a parking area for coaches and a special hard surfaced area for disabled parking.

The Planning people asked that we showed all our foreseeable plans for the area, so we also included our proposed Display and Educational Building which we hope to eventually build behind the Curator's MK II coach. This building will house the magnificent model layout of the Great Central donated to us by the widow of the late Dr. Gardiner, an enlarged and more secure small relics museum, and another area that will serve as an entrance hall on non-steaming days that can also be used as a video room. This building will be brick built to match our Station and will be extended one day to include a shop and administrative centre to replace the now famous Curator's coach and sales coaches. As will be seen from the plan, the new roadway will enter our existing car park opposite the Curator's office coach so that it will eventually enter opposite our new building.

Considerable negotiation took place with Bucks County Council Highways Department over modifications to our entrance where it enters the public road. This included redrawing completely our large scale plan of the area to a scale to match their model vehicles and road " furnishings" so that they could use these on our plans to check clearances etc. There will now be one standard sized entrance onto the main road to take any "conflict" of vehicles away from the fast moving traffic. The redesigned centre of our old "D" will be more obvious to users of the through road that the roadway deflects right and over the bridge, making a safer bend than presently exists. We will be responsible for the cost of these road improvements, but we hope to get a grant for this from the Highways Authority.

A closer look at the plan (shown more clearly on the larger scale) shows a five metre strip of land fenced off from the remaining field. This is an extension of their miniature railway which VAMES would like to make, to give their trains a longer run. A new station will be built with a turntable at its end to change tracks and turn locomotives. This new line will give passengers a very pleasant ride alongside the field , and the locomotive a nice straight stretch of line before passing through our existing copse (which the Planning People were very pleased to see) and joining the existing oval track.

"All very nice," you might say, "but where is the money coming from?" A good question, but unless we have plans we will never know where we are going with or without money. As I said before, the relocation of the coal yard will cost the Society very little. We understand we will be allowed to do this without modifying the road, provided there are no additional road movements. If we are able to get a grant for the roadworks these can then go ahead. The new entrance itself will not be too expensive, but the new roadway will have to wait until funds are available. We have already launched an appeal for sponsors to help us with our new Educational Block (so far not too successful in these hard times); if money becomes available we can make a start on this. Part of our Planning Permission is that we must remove as little of the existing hedgerows as possible and plant more hedges and trees as shown on the plans. We will erect the fence across the field as soon as we can so that the new hedge can be planted this coming autumn. Cuttings will be taken from our other hedges (at least these will not cost us much money). The roadway itself will be completed in places as money becomes available.

Another appreciable step forward for our Society and a very considerable mark of confidence in us by the Planning and Local Authority. Everyone knows we will not be able to fulfil these plans overnight, but it is now up to us to show what we really can do as and when funds do become available.


qn_71_08.jpg (73,442 bytes)

Notes:
The text in this Quainton Railway Society publication was written in 1992 and so does not reflect events in the 20+ years since publication. The text and photographs are repeated verbatim from the original publication, with only a few minor grammar changes but some clarifying notes are added if deemed necessary. The photos from the original publication are provided as scans in this internet version of this long out of print publication.

Reference:
The Development of our Railway Centre - Roy Miller - Quainton News No. 71 - September 1992


Text © Quainton Railway Society / Photographs © Quainton Railway Society or referenced photographer
Email Webmaster
Page Updated: 01 December 2017